产品中心
PRODUCTS
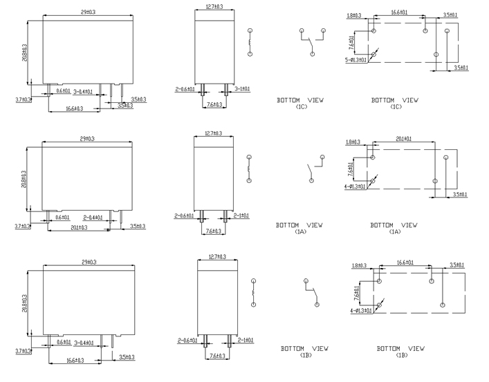
HK14F
初始值最大100mΩ;
流通电流1A、开路测试电压: 6VDC;
使用电压下降法量测。
|
安全认证: UL CQC TUV |
|
| 接点间隙 | 最小0.3mm |
| 接点阻抗 |
初始值最大100mΩ; |
| 接点容量 |
250VAC Cosφ=1,可通过电流为10安培。 30VDC,可通过电流为10安培 |
| 额定电压 | 3VDC | 5VDC | 6VDC | 9VDC | 12VDC | 24VDC | 48VDC |
| 额定电流( mA± 10%) | 176/240 | 106/139 | 88/120 | 56/78 | 44/60 | 22/30 | 11/15 |
| 额定消耗功率 (± 10%) | 0.54W/0.72W | ||||||
| 线圈阻抗 | 17/12.5 | 47/36 | 68/50 | 160/115 | 275/200 | 1100/820 | 4170/3300 |
| 感动电压 |
≦ (当电压渐渐施加于继电器时接点之动作电压,为额定电压之75%) V DC |
||||||
| 开放电压 |
≧ (当额定电压渐渐的减少时接点放开之电压,为额定电压之10%) VDC |
||||||
| 最大应加电压 |
(为额定电压之140%) V DC |
||||||
| 动作时间 | 在施加额定电压时最大为15milliseconds | ||||||
| 开放时间 | 在额定电压突然消失时最大为5 milliseconds | ||||||
| 线圈温升 |
在空载时线圈施加最大可允许电压,待温度稳定后量测的温度不可超过40℃。(不包含环境温度) |
||||||
| 使用寿命 | 电气寿命:10/250VAC Cosφ=1,施加额定电压时,有100,000次以上之电气寿命。10A/30VDC ,施加额定电压时,有100,000次以上之电气寿命。 |
| 机械寿命:在无负载的情况下有10,000,000次以上之机械寿命。 | |
| 最大操作频率 :电气: 每分钟30次。 机械: 每分钟300次。 | |
| 介质耐压 | 接点对接点间:1000VAC,50/60 Hz,漏电流小于1mA,持续一分钟。 |
| 线圈对接点间:5000VAC,50/60 Hz,漏电流小于1mA,持续一分钟。 | |
| 绝缘阻抗 | 在施加500VDC绝缘阻抗之量测值需≧100 MΩ。 |
| 振动测试 | 振动I(强度):在无激磁状态下双振幅宽度为1.5mm,震动频率在一分钟内由10HZ~55HZ~10HZ。XYZ各方向各进行2小时,共六小时,实验后外观构造不可异常,且电气功能需符合规格之要求。 |
| 振动II (稳定性):在激磁状态下双振幅宽度是1.5mm,震动频率在一分钟内由10HZ~55HZ~10HZ。XYZ各方向进行5分钟,实验中不得有误(接点断开时间不可超过1 mS)。实验后外观,构造不可异常,且电气功能需符合规格之要求。 | |
| 冲击测试 | 耐冲击性 I(强度):在无激磁状态加速度1000m/s2冲击情况下,XYZ各方向进行5次,实验后外观,构造不可异常,且电气功能需符合规格之要求。 |
| 耐冲击性 II (稳定性):在激磁状态加速度100m/s2冲击情况下,XYZ各方向进行2次,实验中不得有误(接点断开时间不可超过1 mS),实验后外观,构造不可异常,且电气功能需符合规格之要求。 |
| 温度范围 | 使用温度范围:-40 to + 70°C 使用温度范围是代表继电器在线圈之动作电压范围内可以持续动作的温度范围(在低温时无水滴凝结现象) |
| 储存温度范围:-30 to + 70°C. 储存温度范围是代表继电器在没有损伤的情况下可以被储存的温度范围(在低温时无水滴凝结现象)。储存的情况在本SPEC其它地方所示。 |
|
| 湿度范围 | 40~85% RH |
| 耐寒性 | 使用耐寒性:继电器不给予电压或电流状态下,在恒温箱以-40 ± 2°C的温度连续保持2小时。保持原状态操作回路上给予定格电压实验时继电器动作要正常。(在低温时无水滴凝结现象) |
| 储存耐寒性:继电器在恒温箱以-30 ± 2°C的温度连续保持72小时。接着,于常温常湿中消除水滴1至2小时以后,进行构造,动作,及绝缘阻抗,耐压的测试,结果需要符合SPEC。(在低温时无水滴凝结现象) | |
| 耐热性 | 使用耐热性:继电器操作回路提供定格电压,在接点部份提供定格电流的状态下,在恒温箱以70 ± 2°C的温度连续保持2小时后,保持原状态进行继电器动作之测试,结果必须符合SPEC。 |
| 储存耐热性:继电器在恒温箱以70 ± 2°C的温度连续保持16小时,在常温,常湿状态下,放置1-2小时后,进行构造,动作,及绝缘阻抗,耐压的测试,结果需要符合SPEC。 | |
| 耐湿性 |
继电器以温度40 ± 2°C相对温度在85%环境下连续保持48小时,接着,于常温常湿放置1-2小时后,进行构造,动作,及绝缘阻抗,耐压的测试,结果需要符合SPEC。 |
| 端脚强度 |
在水平方向负重300 克持续1分钟,测试完成后端脚不能有任何的松脱或是弯曲。 |
| 沾锡测试 |
温度230 ± 5°C,时间3 ± 0.5秒,浸渍端子前端3mm,须沾锡面积需达90%以上。 |
| 沾锡耐热性 |
当端脚浸到350°C的锡炉内3秒钟时,继电器必须能符合所有的电气与机械规格之要求,且外观不会有改变。 |
重量:约14克
抽样检查标准:GB2828-2000之抽样标准中,以一般检查水准II级AQL – 0.4为依据。
| HK14F | -DC 12V -S X X X X |
| 特殊标记 | G:环保产品 |
| 安装方式 | 无:PCB |
| 触点转换形式 | 无: 1C 1A 1B |
| 线圈功耗 | 无:0.72W H:0.53W |
| 封装方式 | 无:半密封型 S:密封型 |
| 线圈电压 | 3V、5V、6V、9V、12V、24V、48V |
| 线圈性质 | DC:直流 |
| 产品型号 | HK14F |

| 产品型号 | 内包装方式 | 纸箱规格 | 总数量 | 净重(Kg) | 毛重(Kg) |
| 长*宽*高 | |||||
| HK14F | 25只/管(每盒10管,共有4小盒) | 39*38*18 | 1000/箱 | 12.5 | 15 |





